Bought with Laura Rodriguez-Lewis Keller Williams City Views Realty
For more information regarding the value of a property, please contact us for a free consultation.
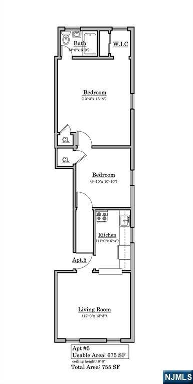
552 38th ST #5 Union City, NJ 07087
Want to know what your home might be worth? Contact us for a FREE valuation!

Our team is ready to help you sell your home for the highest possible price ASAP
Key Details
Sold Price $250,000
Property Type Condo
Sub Type Condo
Listing Status Sold
Purchase Type For Sale
MLS Listing ID 25026911
Style Condo
Bedrooms 2
Full Baths 1
HOA Fees $345/mo
Annual Tax Amount $3,332
Property Sub-Type Condo
Property Description
Move right into this newly remodeled 2 bedrooms condo in the heart of Union City. Featuring 4 rooms, consisting of 675 SQFT, living room, kitchen, 2 bedrooms with closet & 1 bathroom with a large walk-in closet. Conveniently located close to Bergenline Ave stores, cafes, restaurants, banks, supermarkets, local and NYC transportation, houses of worship, schools, major highway arteries, and super stores. Not FHA approved! Unit will be delivered vacant. The HOA includes heat, water, sewer, insurance for the building, management, internet, security cameras, reserves. The HOA includes heat, water, sewer, insurance for the building, management, internet, and security cameras.
Location
State NJ
County Hudson
Building/Complex Name None
Interior
Cooling Win/AC
Laundry None
Exterior
Amenities Available None
Waterfront Description None
Building
Lot Description Close/Parks, Close/School, Close/Shopg, Close/Trans, Close/Wrshp
Read Less

Get More Information




